电感式接近开关的原理及使用分享
2022-11-28 科威
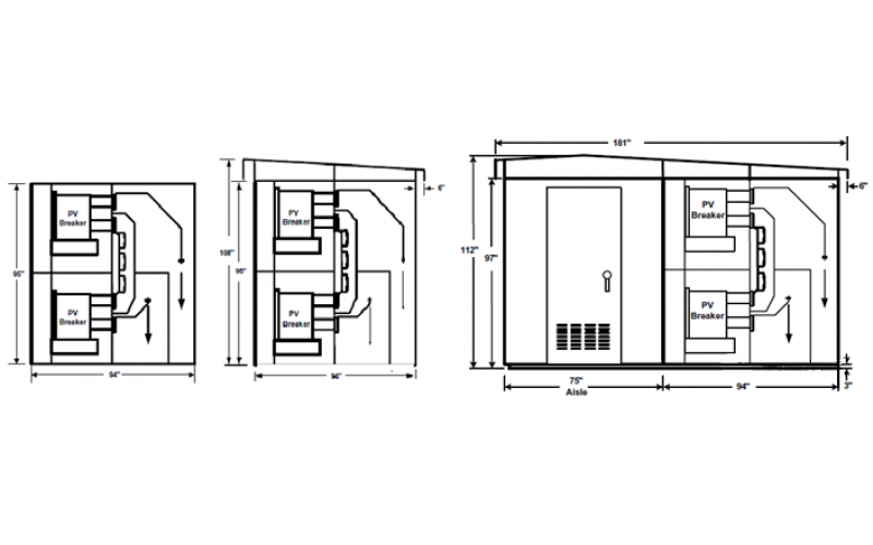
IEEE标准真空断路器要求
IEEE标准中压开关柜要求
KWZK-GM系列安全光幕的应用简介
2022-11-25 科威
水处理常用阀门知识介绍
大型视频监控网络系统如何规划ip地址?
配电变压器套管故障数据分析
法兰螺栓力矩紧固为什么必须分步紧固?
2022-11-24 科威